About image
Jambangan Town House merupakan mini cluster di kota Surabaya bagian Selatan.
Rumah 2 lantai dengan desain modern minimalis untuk memenuhi kebutuhan fungsi sebuah rumah modern.

Dengan 3 kamar tidur dan 2 kamar mandi serta ruang tamu, ruang makan , dapur serta carport membuat rumah ini terasa lengkap untuk keluarga.

One gate sistem semakin menambah kenyamanan penghuni rumah ini.

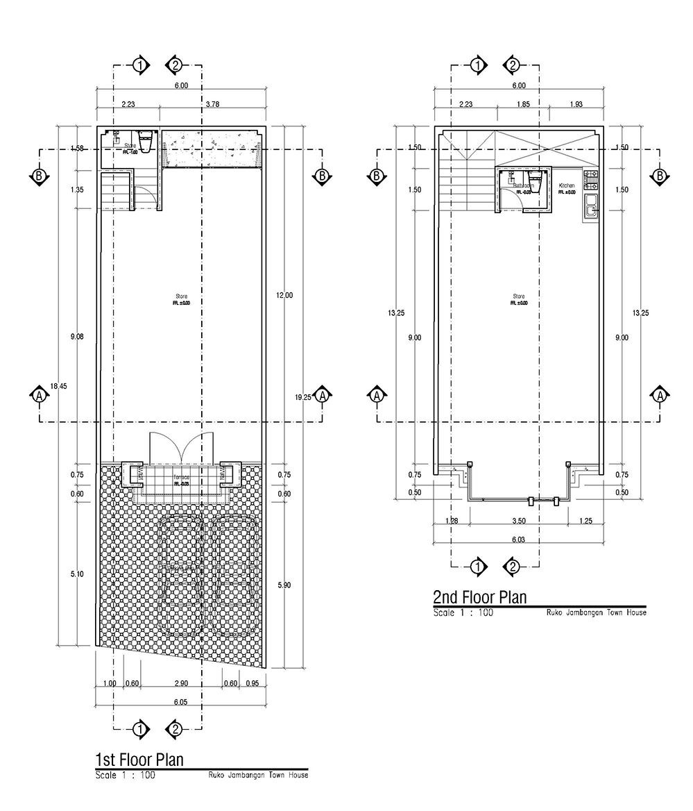
Tersedia juga ruko 2 lantai di bagian depan perumahan dengan lebar 6 meter yang bisa di jadikan rumah usaha, lantai 1 untuk usaha, lantai 2 untuk tempat tinggal.

Akses bisa dicapai dari berbagai arah dari pusat kota Surabaya maupun keluar kota melalui jalan raya dan pintu  tol.

Fasilitas pusat belanja, hiburan , pendidikan dan kesehatan berada dekat dengan lokasi perumahan ini.

Hubungi sekarang :

Agus Prijanto


  • Jalan Jambangan Kebon Agung, Jambangan, Surabaya City, East Java, Indonesia

I BUILT MY SITE FOR FREE USING